三郷市 早稲田7丁目 新築戸建 全1棟 1号棟
5月11日 値下げ
3,980万円
武蔵野線「三郷」駅徒歩18分
武蔵野線「新三郷」駅徒歩30分
つくばエクスプレス「三郷中央」駅徒歩51分
【居間・リビング】広いリビングは家族が自然と集まる居心地の良い空間 ※家具をCGで加工しており、家具付き販売ではございません。
- 価格
- 3,980万円
- 間取り
- 4LDK
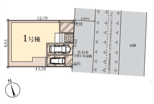
- 土地面積
- 113.05㎡
- 建物面積
- 96.88㎡
- 築年月
- 2026年2月(新築)
- ※事前に必ずお問い合わせください
- 平日もご案内可能♪事前にご予約下さい♪三郷新築ナビで検索♪
■■物件情報の更新■■
各物件の価格変更や現場写真を毎日更新中♪
■■ご案内方法■■
ご来店が難しいお客様はご指定場所(自宅送迎・最寄り駅など)での待ち合わせ・
ご案内もご選択いただけます(無料送迎)。
お客様のご希望条件をお聞かせいただければ、お問い合わせいただいた物件と一緒に他の物件もご紹介・ご案内致します。
■■ライフプラニングサービス(無料・要予約)■■
ご希望のお客様には、第三者の立場から金融のプロである
【ファイナンシャルプランナー】がお客様の経済状況等を総合的にお伺いし、
住宅ローンの支払い・繰り上げ返済の時期・保険や税金等を踏まえた家計のやり繰り、
または資産形成についてのご相談やアドバイスを行わせていただきます。
■■お子様連れのお客様■■
ゆっくりご相談いただけるようにキッズスペースをご用意しております。
DVD、おもちゃ、ぬりえ、絵本などお子様の遊び道具を準備してございます、ぜひご利用ください♪
■■知らないと損する「住宅ローン相談」受付中(無料相談)■■
お客様の状況に合わせ、金融機関・金利種類の選定などをご提案致します。
ご相談内容によっては支払い総額が格段に抑えられることも!
お気軽にお問い合わせください♪
■■下記のようなご相談も承ります■■
○物件購入可能額 ○賃貸か持ち家 ○今すぐ購入か頭金を貯めてから ○マンションか戸建 ○今すぐ売却か将来売却
お客様の住宅購入を全力サポート♪ -
バストイレ別
-
室内洗濯機置場
-
TVモニタ付きインターホン
-
カウンターキッチン
-
独立洗面台
-
浴室乾燥機

リビング
キッチン
洗面所
洋室
洋室- 販売戸数
- 1戸
- 総戸数
- 1戸
- 間取り / 詳細
- 4LDK
LDK 16.0帖/和室 4.5帖/洋室 7.7帖/洋室 6.0帖/洋室 5.5帖 - 向き
- 南
- 建物面積(坪数)
- 96.88㎡(29.3坪)
- 土地面積(坪数)
- 113.05㎡(34.19坪)
- 建ぺい率 /
容積率 - 60%/200%
- 築年月
- 2026年2月(新築)
- 駐車場 / 月額
- 有(2台) / 0円
- 土地権利
- 所有権
- 土地
(敷金 / 保証金) - - / -
- 建物構造
- 木造 / 2階建
- 傾斜地部分面積
- -
- 路地状敷地
- -
- 私道負担面積
- -
- セットバック
- 無
- 高圧線下面積
- -
- 施工会社
- -
- 用途地域
- 第一種中高層住居専用
- 地目 / 地勢
- 宅地 / -
- 接道状況
- 一方(南東 公道 4.0m)
- 国土法届出要否
- 不要
- 都市計画
- 市街化区域
- 総区画数 /
販売区画数 - 1区画/1区画
- 現況
- 完成済み
- その他
法令上の制限 - 景観法
- 取引態様
- 仲介
- 引渡し
- 即時
- 取引条件の
有効期限 - 2026年05月25日
- 設備条件
-
- 陽当り良好 / 閑静な住宅地 / 建設住宅性能評価書付 / 眺望良好 / 住宅金融支援機構利用可 / 現地見学会 / 新婚さん向け / ファミリー向け / キャンペーン / 室内洗濯機置場 / フローリング / バルコニー / 都市ガス / 公営水道 / 公共下水 / 24時間換気システム / 電気有 / 駐輪場 / バイク置場あり / 駐車2台可 / 耐震構造 / ガスコンロ / コンロ2口以上 / システムキッチン / コンロ3口 / オープンキッチン / カウンターキッチン / バス・トイレ別 / 追焚機能浴室 / 浴室乾燥機 / 温水洗浄便座 / 洗面台 / 洗髪洗面化粧台 / トイレ2ヶ所 / 浴室1坪以上 / 独立洗面台 / 床下収納 / ウォークインクロゼット / 食品庫 / 収納豊富 / TVモニタ付インターホン / 複層ガラス / ディンプルキー / 住戸内覧可能
- 設備(その他)
-
-
公営水道、本下水
- 物件番号
- 98155071
- 管理コード
- -
- 建築確認番号
- 第25UDI1W建06333号
- 情報更新日
- 2026年05月14日
- 次回更新予定日
- 2026年05月25日
- 取扱会社
-
- (株)クルーハウジング
- 埼玉県三郷市彦成3丁目207-3
- TEL:0489545600
- 埼玉県知事 (3) 第22860号
- (公社)埼玉県宅地建物取引業協会
- 備考
- オートバスシステムが付いておりますので、寒い冬でもスイッチ一つでお湯が張れます。新築ならではの「新しさ」がとても魅力です。初めてのマイホームに新築戸建てはいかがでしょうか。機能的で使いやすいシステムキッチン付きなので、お料理を楽しめます。不動産をお探しなら、当社にお任せください。当社は数多くの不動産情報を取り扱っております。ぜひ当社での不動産探しをご検討ください。
-
幼稚園
いなほ幼稚園
253m(4分)
-
公園
カトレア公園
388m(5分)
-
ドラッグストア
マツモトキヨシ 早稲田団地店
547m(7分)
-
コンビニエンスストア
ファミリーマート三郷早稲田七丁目店
565m(8分)
-
郵便局
三郷丹後郵便局
599m(8分)
-
保育園
三郷市役所 早稲田保育所
608m(8分)
-
ドラッグストア
ウエルシア三郷早稲田店
951m(12分)
-
コンビニエンスストア
セブン-イレブン三郷早稲田4丁目店
1035m(13分)
-
小学校
三郷市立前間小学校
1115m(14分)
-
スーパー
業務スーパー・三郷店
1117m(14分)
-
駅
三郷駅
1386m(18分)
-
ファミリーレストラン
びっくりドンキー 三郷店
1689m(22分)
-
中学校
三郷市立早稲田中学校
1793m(23分)
-
ホームセンター
IKEA新三郷
2830m(36分)
-
ショッピングセンター
ららぽーと新三郷
2924m(37分)
-
ディスカウントショップ
MEGAドン・キホーテ三郷店
2960m(37分)
-
ショッピングセンター
コストコホールセール 新三郷倉庫店
3132m(40分)
-
市役所・区役所
三郷市役所
3484m(44分)
-
ディスカウントショップ
ジェーソン 三郷店
4004m(51分)
- 月々の支払額
- 円
- 購入希望物件価格
-
万円
- 頭金
-
万円
- 金利
-
%
- 返済額(ボーナス1回分)
-
万円
- 返済期間
-
年
現地見学会
物件の特徴
セールスポイント
家族におすすめな4LDK。設備も充実しています。新築ならではの「新しさ」がとても魅力です。来訪者の顔が見えるTVインターホン付き。建物面積96.88平米なので、使い勝手がいいです。多種多様な不動産情報を取り扱う当社なら、きっとお客様の住まい探しに役立てることでしょう。お引っ越しをお考えの方からのお問い合わせをお待ちしております。
ポイント
5月11日:価格変更♪100万円値下げ♪ クロゼット3ヶ所 ダウンライト 住戸内覧可能 トイレ2ヶ所 東南側道路面す
担当者のコメント
パノラマ画像
基本情報
設備条件
その他
周辺施設
支払いシミュレーション
※実際の金額と異なる場合があります。
※ボーナスは自動で年2回分で計算されます。
近隣の物件
よく見られている物件
三郷市 早稲田7丁目 新築戸建 全1棟
3,980万円
-
4LDK(96.88㎡)
小柳 拓也